Corbett Restaurant
Revit | Commercial Space Planning
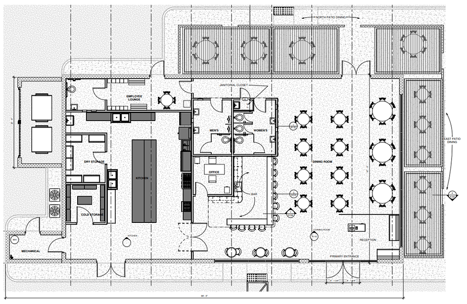
One-story, 4,000 SF commercial restaurant layout developed in Revit. Organized front-of-house and back-of-house functions to support circulation and service flow.
Deliverables: site plan, floor plan, reflected ceiling plan, roof plan, elevations, building sections, wall sections, enlarged views, and 3D views.

Floor plan — front-of-house and back-of-house organization, circulation flow, and space planning.

Building section — spatial relationships between dining and service areas, roof structure, and ceiling heights.

South elevation — facade composition, masonry assembly, glazing layout, and level annotations.

Southeast wall section — standing seam metal roof, 12" masonry/GWB wall, curtain wall, and pergola connection at level annotations.

Enlarged restroom plan — men's, women's, and janitorial closet layout with dimensioned clearances.

Revit 3D view — roof truss system, structural framing, patio pergola, and building assembly.
