Habitat for Humanity Home
AutoCAD | Residential Construction Documents
Complete construction document set produced in AutoCAD for an 800 sq. ft. single-family residence. Developed for the Habitat for Humanity House Design Competition within program, budget, and code constraints.
Deliverables: floor plan, foundation plan, exterior elevation, building section, and wall section detail. Designed to IRC standards and local Tucson requirements.

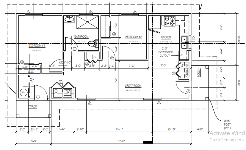
Floor plan — spatial layout, room relationships, and dimensioned construction documentation.

Foundation plan — footing layout, slab system, and structural support strategy.

Wall section detail — material assembly, insulation strategy, and roof-to-wall connection.

Building section — structural system, roof assembly, and vertical spatial relationships.

Exterior elevation — facade composition, roof form, and material expression.
