Lake Cabin Renovation | Revit | Residential Renovation + Construction Documentation
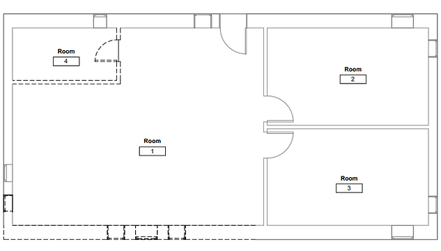
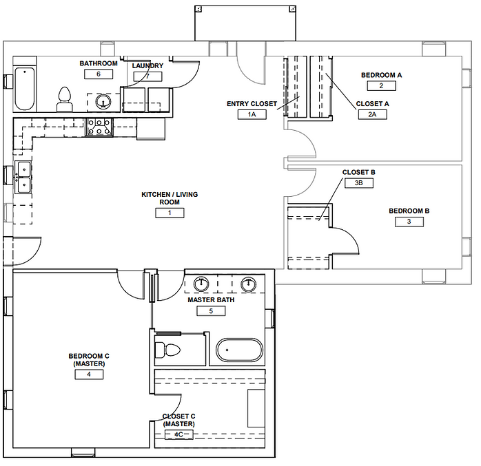
Residential renovation project designed and documented in Revit with a focus on transforming an existing two-bedroom/one bathroom layout into a more functional and efficient three-bedroom/two bathroom living space. Scope included existing conditions survey, demolition plans, and proposed construction drawings.
Deliverables: existing and proposed floor plans, demolition plan, renovation plan, interior elevations, schedules, and site plan.
Layout Transformation

Existing floor plan — documented conditions prior to renovation.

Demolition plan — elements to be removed in preparation for proposed work.
Demolition + Proposed Construction

Proposed floor plan — revised layout and spatial organization.

Renovation plan — coordinated proposed construction scope.
Interior Elevations + Documentation


Interior elevations — cabinetry layout and interior element coordination.

Casework schedule supporting construction documentation.

Site plan — building placement and site context.

Exterior render — proposed conditions and site context
